부산 아파트 서면 써밋 더뉴 아파트 모델하우스





















부산 서면 써밋 더뉴 아파트 모델하우스 분양
부산 도심의 밀도 상승이 이어지는 가운데 일터와 집이 가까운 하이레벨 주거를 원하는 수요는 꾸준합니다. 그 한가운데에서 하이라이즈 상징성과 생활 인프라를 동시에 품은 단지가 바로 서면 써밋 더뉴입니다. 대형 상권과 복합 환승 거점이 맞닿는 입지, 도심형 커뮤니티의 완성도, 합리적인 중소형 중심 라인업이 어우러져 실수요와 투자 관점 모두에서 주목받고 있습니다. 도심에 드문 대단지 고층 주거라는 희소성까지 더해져 서면 써밋 더뉴를 향한 관심은 당분간 이어질 가능성이 큽니다. 여기서는 모델하우스에서 확인한 구성을 중심으로 서면 써밋 더뉴의 핵심을 간결하게 정리합니다.
사업 개요와 상징성
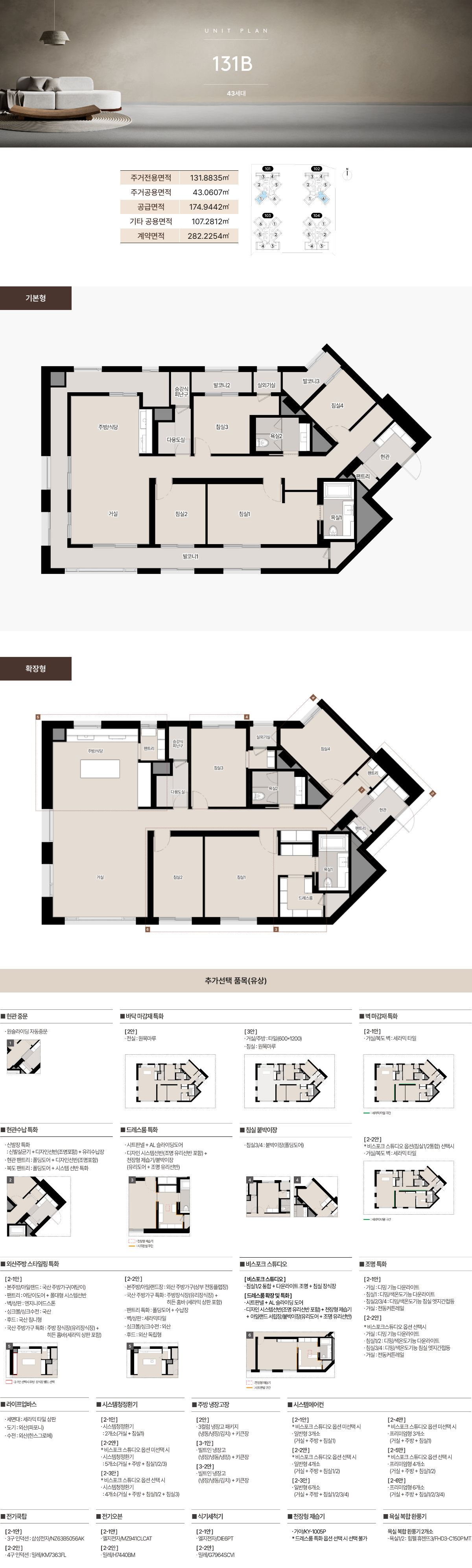
서면 써밋 더뉴는 도심 중심부의 대지에 지하와 지상을 입체적으로 활용해 생활 동선과 조망 가치를 극대화한 것이 특징입니다. 수직적 집적을 통해 확보한 세대 수와 커뮤니티 면적, 저층부 근린상업시설의 조합이 자족형 라이프를 가능하게 합니다. 타입은 전용 59, 74, 84㎡의 중소형이 주력이며, 선택지를 넓히는 세부 유닛으로 실거주·투자 수요의 균형을 맞췄습니다. 상징성이 분명한 초고층 외관과 밤의 스카이라인까지 고려한 파사드는 서면 써밋 더뉴를 지역의 새로운 아이콘으로 자리매김하게 합니다.
평면 설계와 수납·동선의 디테일
서면 써밋 더뉴의 유니트는 4베이 중심의 판상형과 공간 분리에 강점이 있는 타워형을 적절하게 혼합했습니다. 59㎡는 실속형 3룸 구성에 발코니와 팬트리를 더해 체감 면적을 키웠고, 74㎡는 거실과 주방을 일자 동선으로 연결해 가족 커뮤니케이션을 강화했습니다. 84㎡는 알파룸과 대형 드레스룸, 복도 팬트리 등 다목적 수납을 적극 반영해 자녀방·홈오피스·취미실 등으로의 확장성이 뛰어납니다. ㄷ자형 또는 ㄱ자형 주방과 창호 배치는 채광·환기를 돕고, 현관 창고와 다용도실은 계절·레저 물품 보관까지 여유롭게 수용합니다. 이러한 설계 포인트는 서면 써밋 더뉴를 “실제보다 넓게 느껴지는 집”으로 만드는 핵심입니다.
도심형 커뮤니티와 스마트 시스템
하이엔드 도심 단지답게 커뮤니티는 일상의 질을 끌어올리는 데 집중합니다. 피트니스와 GX룸, 실내 골프연습장, 사우나 등 헬스케어 시설을 갖추고, 북카페·작은도서관·스터디룸·어린이집 등 학습·돌봄 인프라도 풍부합니다. 최상층 스카이라운지는 야경 조망과 프라이빗 라운지를 결합해 도심 하이라이즈의 감성을 극대화합니다. 스마트 도어락, 주차 유도와 차량 위치 확인, 세대 환기·미세먼지 관리, 홈 IoT 연동 등 설비 전반은 사용성을 고려해 표준화되어 있습니다. 이러한 구성은 서면 써밋 더뉴가 지향하는 “집 안에서 완성되는 하루”를 현실로 만듭니다.
교통·생활·교육·자연, 4박자를 갖춘 입지
서면 써밋 더뉴의 최대 장점은 이동 효율입니다. 도시철도 1·2호선 더블 역세권을 중심으로 KTX와 급행철도 노선이 지나는 복합 환승 거점까지 가깝습니다. 업무지구, 대학가, 해운대·센텀과의 연결성이 뛰어나 출퇴근·외출 동선이 단순해집니다. 롯데·NC 리테일 자산, 로데오 상권, 대형 문화·쇼핑시설, 각종 메디컬센터가 척척 이어지고, 부산시민공원·송상현광장 등 녹지까지 도보 접근이 가능합니다. 초·중·고 및 학원가로 이어지는 학령 12년 체계 또한 인접해 학부모 수요의 선호가 높습니다. 이런 입지적 밸류는 서면 써밋 더뉴가 장기 보유 관점에서도 이유 있는 선택이 되는 배경입니다.
자금 계획과 체감 비용의 균형
도심 신축의 가격대는 분명하지만, 자금 구조는 체감 부담을 낮추는 방향으로 설계하는 것이 현실적입니다. 계약금 비중과 중도금 이자 조건, 잔금 스케줄을 꼼꼼히 비교해 월 납입 규모를 예측해 보시길 권합니다. 중소형 위주 라인업은 초기·운영비 측면에서 효율적이며, 전용 59·74㎡는 유지보수·관리 측면에서도 합리적입니다. 임대 수요가 두터운 서면권 특성상 전월세 전환도 유연합니다. 이런 포지션은 서면 써밋 더뉴의 수요 흡수력을 높여 가격 방어와 환금성에 긍정적으로 작용합니다.
중·장기 모멘텀과 시세 흐름
도심 재정비, 복합환승센터 고도화, 신규 트래픽 노선의 단계적 반영은 도심 코어 자산의 프리미엄을 지지합니다. 특히 초고층 아이코닉 단지의 희소성은 동일 생활권 내에서 대체제가 적다는 점에서 중장기 가치에 의미를 부여합니다. 인접 노후 주거지의 순차적 정비와 상권 활성화, 오피스·주거 혼합 수요의 확장도 서면 써밋 더뉴에 우호적입니다. 결과적으로 “도심·교통·상권·상징성”이 겹치는 입지의 가격 탄력성은 시장 변동 구간에서도 상대적으로 견조할 가능성이 높습니다.
실거주와 투자 관점의 핵심 체크리스트
실거주라면 층고·향·동간 간섭·소음 차폐·승강기 대수와 같은 디테일을 우선 보시고, 알파룸·팬트리·드레스룸의 실제 체감 크기를 모델하우스에서 확인해 보시길 권합니다. 투자 관점에서는 동일 생활권 내 준공 연도, 공급 물량, 임대 시세 밴드, 단지 내 상업시설의 운영 구성을 비교하면 서면 써밋 더뉴의 포지션이 더 명확해집니다. 무엇보다 대중교통 접근성과 도보 생활 반경 내 인프라 밀도는 장기 공실 리스크를 낮추는 안전장치가 될 것입니다.
마무리 인사이트
서면 써밋 더뉴는 도심 하이레벨 라이프스타일을 원하는 수요에 명확히 응답하는 상품입니다. 상징성 있는 초고층 스카이라인, 실수요 친화적 중소형 라인업, 촘촘한 생활 인프라, 입체적 교통망이 하나의 경험으로 묶입니다. 실거주자는 시간이 지날수록 체감되는 편의성을, 투자자는 도심 코어 희소성이 주는 프리미엄을 기대할 수 있습니다. 모델하우스에서 동·호수별 채광과 조망, 커뮤니티 동선, 세대 옵션의 체감 차이를 직접 확인해 보시면 서면 써밋 더뉴의 경쟁력이 더 선명해질 것입니다.


